Four Seasons Hotel
To relax on a private island, what more do you want? Architectural firm Skidmore, Owings & Merrill (SOM) took this premise quite literally and simply built an artificial island from scratch. In the middle of Bahrain Bay, the luxurious Four Seasons Hotel functions as an impressive “gateway to the city”, visible from miles away. Its combination of glass façades and concrete piers catches you off guard in this oasis of flashy skyscrapers.
A 200-metre-tall hotel on an artificial island in the middle of the Arabian Gulf: that describes the Four Seasons Hotel pretty well. But the architects at SOM saw the project mainly as a unique opportunity. Project architect Thomas Behr explains: “The stakes were high. It is not very often that you design a masterplan and then get to build on it as well. But we succeeded, and we hope we can build many similar buildings here in the future. Our first project in Manama, the Hotel makes a definite statement through its design: it is a gateway to the city.”
The stakes were high. It is not very often that you design the masterplan and then get to build on it as well.

The Four Seasons Hotel functions as a reference point in and around Bahrain Bay. Its unusual combination of concrete and glass immediately grasps your attention.
Intimacy in luxury
When looking at the iconic waterfront hotel from afar, you see 48 storeys hosting over 270 guest rooms, all wrapped in concrete and glass. Textures and patterning on these concrete walls create a natural, earthy finish within a city made of steel. “The building’s design makes it stand out like an architectural giant, yet the Four Seasons Hotel always stays intimate to its guests,” says Behr.
Intimacy is key as the Hotel wants to make you feel right at home, starting from the entranceway. A bronze powder-coated aluminium ceiling covers the main driveway, giving you a pleasant, cosy feeling. And if it is cosiness you want, cosiness you will get. Around the main tower, you will find smaller pavilions housing a spa, restaurants, and multiple conference venues. Or take a stroll through the Mediterranean-style garden: its olive trees and wildflowers will make you believe you were in rustic Tuscany instead of dashing Manama.

When you enter your Four Seasons suite, ignore the king size bed for a moment and have a look outside. All guest rooms have full-height windows, giving visitors spectacular views of the surrounding Bay. Belgian façade contractor Jungbluth Alu Partners chose long-standing friend Reynaers Aluminium to help create the large glass surfaces. Custom curtain wall solutions, based on our ElementFaçade 86 and ConceptWall 50-Structural Clamped (SC) systems, cover the 15,000-square-metre façade completely.
This gateway to Bahrain’s capital city stands out with its natural look and feel. Impressive from every angle, yet intimate for all visitors. Thanks to our project-specific curtain wall solutions, you can bathe in luxury with an unmatched view on the Manama skyline. So sit back, relax, and enjoy your stay at the Four Seasons Hotel.


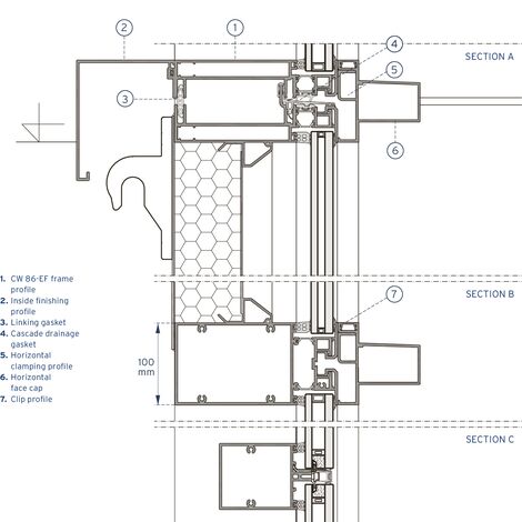
Vertical section CW 86-EF bespoke solution
Used systems
Involved stakeholders
Fabricator
- Jungbluth Alu Partners S.A.
Photographer
- Waleed Alabbas
Other stakeholder
- Werner Sobek (Engineering office)
- Besix Group NV (General contractors)